
DÚPLEX EN CONSTRUCCIÓN EN GRAND BOURG
Armoníe, complejo de dúplex de 2 dormitorios en Gran Bourg
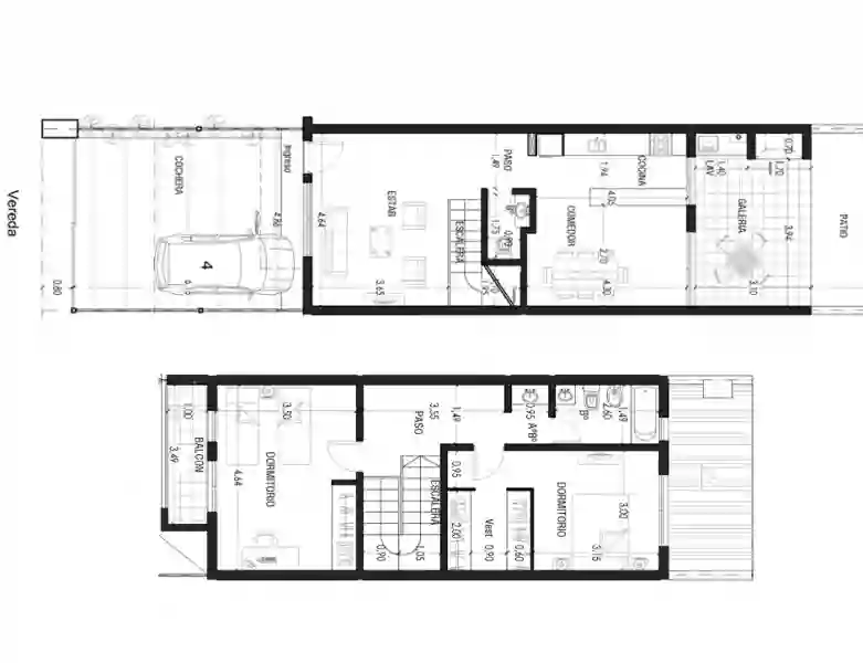
Diseño innovador, estilo moderno y ambientes amplios. Un espacio de 130 m2 con todas las comodidades en la zona más estratégica de la ciudad.
COMODIDADES
Carpinterías externas de aluminio
Pisos y revestimientos cerámicos de primera calidad
Amoblamientos de cocina con mesada de granito y bajo mesadas
Frente de placares y persianas de aluminio en dormitorios
Artefactos de baño de loza, con bañera y grifería cierre cerámico
Instalaciones sanitarias por termofusión con materiales certificados de primera calidad
Conexión de gas natural; incluye cocina con horno
Conexión eléctrica para equipos de aire acondicionado en ambientes principales
Calefacción central con radiadores en ambientes principales y Caldera dual
UNIDADES
TE CONTACTAMOS
Grand Bourg
Calle 6 de Julio
Salta Capital, Salta